那覇市上間(売地)☆☆あなたのマイホーム建築に合った敷地をご用意しました♪☆☆

【土地A】 2,700万円
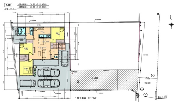
土地面積:179.25㎡/54.22坪
建蔽率:50%
容積率:100%

【土地B】 2,350万円
土地面積:157.27㎡/47.57坪
建蔽率:50%
容積率:100%
理想のマイホームは・・・やっぱり「平屋」
当販売売地は、「平屋」造りに最適な形となっております。
「平屋」造りのメリットとは・・・
●広々とした間取りが造りやすい(間取りの自由度が高い)
●階段が無くバリアフリーへの対応がしやすい
●暮らしやすい効率の良い動線をつくりやすい
●家族でコミュニケーションを取りやすい
●地震に強い(2階建て以上の建物よりも構造が安定)
●光熱費を抑えやすい
●メンテナンスがしやすい
近年・・・生活の全てがワンフロアで完結する、「平屋」造りが人気を集めております。
新しい住まいで重視するポイントは家庭によって異なります。
家族との会話を大切にしたい、郊外や田舎でのんびり暮らしたい、老後を見据えた家づくりがしたいなど、自分が暮らしの中で大切にしたいものは何かを考えながら、「平屋」を検討してみるのも良いのではないでしょうか。

↑↑↑↑
「平屋」造りのイメージ

那覇市上間に分筆(2筆)の売地が出ました♪
那覇市上間国道507号線 スズキ自販沖縄国場近くの売物件♪
(建築条件なし)
A棟・B棟ともにイメージの手助けとなる建築参考プランも
ご用意しております♪
☆平屋3LDK RC造・駐車場4台可能♪

土地購入から建築まで弊社にお任せください♪
☆平屋3LDK RC造・駐車場3台可能♪
ぜひ一度、ご相談ください☆ご来店おまちしております♪
